TRL - V. Fonte Lagrimosa - Nuova Costruzione
€ 239.000
Fonte Nuova, Roma
Dettagli
Contratto Vendita
Rif 356
Prezzo € 239.000
Provincia Roma
Comune Fonte Nuova
Indirizzo Via Fonte Lagrimosa">
Vani 3
Camere 2
Bagni 2
Classe energetica
A4 (DL 90/2013)
EPgl,nren 35 kwh/m2 anno
Riscaldamento autonomo
Condizioni nuova costruzione
Anno di costruzione 2025
Ascensore si
Cucina angolo cottura
Consistenze
| Descrizione | Superficie | Sup. comm. |
|---|---|---|
| Principali | ||
| Immobile - piano terra | 98 Mq | 98 Mqc |
| Totale | 98 Mqc | |
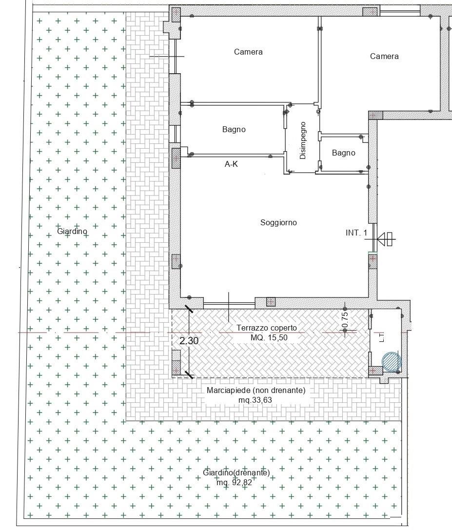
FONTE NUOVA – Tor Lupara – Proponiamo in vendita uno splendido trilocale con doppi servizi in un moderno complesso residenziale di nuova costruzione a Tor Lupara, dotato di ascensore che collega direttamente al piano seminterrato dove sono disponibili Box, Cantine e Posti auto scoperti. L'appartamento offre un luminoso soggiorno con angolo cottura, due spaziose camere matrimoniali, doppi servizi, un accogliente terrazzo coperto di circa 16 mq e un ampio giardino angolare di circa 93 mq.
Realizzato con materiali di pregio e tecnologie all'avanguardia, l'immobile garantisce massima efficienza energetica (Classe A4) e risparmio sulle bollette grazie all'assenza di gas, riscaldamento a pavimento, pompe di calore, pannelli solari e predisposizione per aria condizionata. Completa la proprietà un parco verde comune interno, perfetto per relax e tempo libero. Consegna prevista per dicembre 2025.
Prenota ora il tuo appuntamento, contatta la Bea Immobiliare allo 06/90018074 - 06/90018696 - 327/0411867 oppure richieste.beaimmobiliare@gmail.com
Realizzato con materiali di pregio e tecnologie all'avanguardia, l'immobile garantisce massima efficienza energetica (Classe A4) e risparmio sulle bollette grazie all'assenza di gas, riscaldamento a pavimento, pompe di calore, pannelli solari e predisposizione per aria condizionata. Completa la proprietà un parco verde comune interno, perfetto per relax e tempo libero. Consegna prevista per dicembre 2025.
Prenota ora il tuo appuntamento, contatta la Bea Immobiliare allo 06/90018074 - 06/90018696 - 327/0411867 oppure richieste.beaimmobiliare@gmail.com
Richiedi maggiori informazioni
Mappa
Zoom della mappa
Apri con:
Apple Maps
Google Maps
Waze
Contattaci
Bea Immobiliare di Zaccaria Beatrice
Via Nomentana, 26 00013 FONTE NUOVA (RM)
Via Nomentana, 26 00013 FONTE NUOVA (RM)
C.F.: ZCCBRC69D41H501S
P.IVA: 15714841002
0690018074
3270411867





