TRL - via De Sanctis - 229
€ 229.000
Fonte Nuova, Roma
Dettagli
Contratto Vendita
Rif 366
Prezzo € 229.000
Provincia Roma
Comune Fonte Nuova
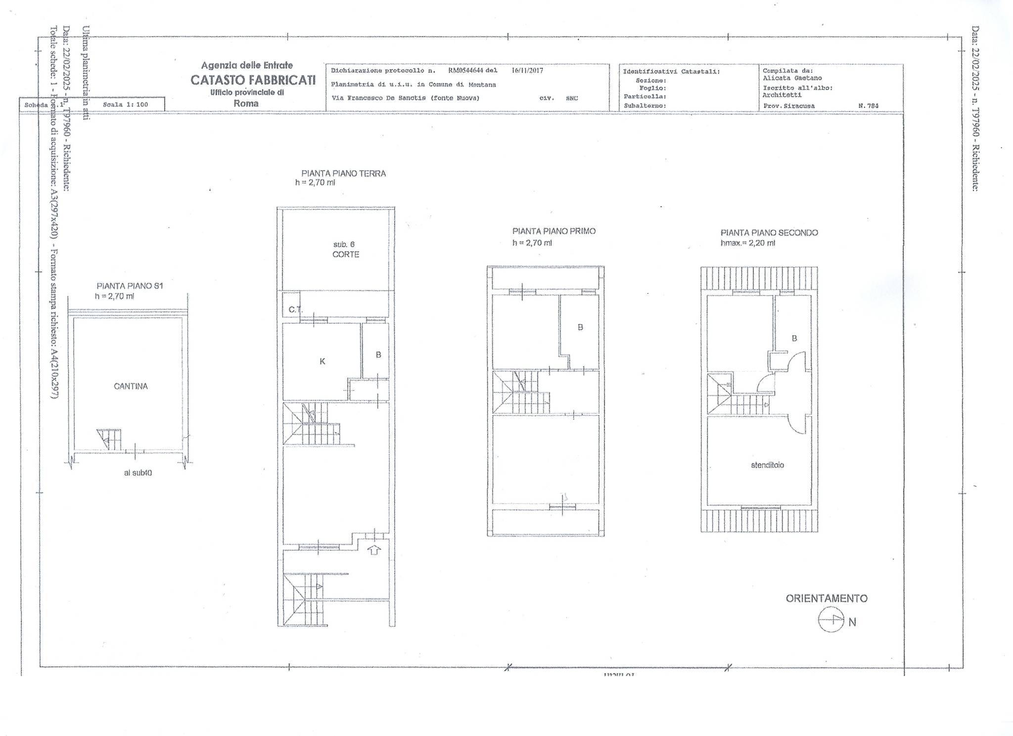
Indirizzo Via Francesco de Santis">
Vani 5
Camere 3
Bagni 3
Classe energetica
G (DL 90/2013)
EPgl,nren 175 kwh/m2 anno
Riscaldamento autonomo
Condizioni abitabile
Spese condominiali € 100
Anno di costruzione 1995
Cucina abitabile
Consistenze
| Descrizione | Superficie | Sup. comm. |
|---|---|---|
| Principali | ||
| Immobile - piano terra | 140 Mq | 140 Mqc |
| Totale | 140 Mqc | |
FONTE NUOVA - località Tor Lupara - Proponiamo in vendita, villino a schiera con ingresso indipendente e così composto, al piano seminterrato troviamo un ampio box con sala hobby attigua, al piano terra (rialzato) balcone di ingresso, soggiorno, cucina abitabile con terrazzo di 21 mq con barbecue, disimpegno e bagno finestrato, al piano 1° troviamo un'ampia camera matrimoniale con balcone, disimpegno con altro bagno finestrato e una cameretta con balcone, al piano 2° un'ampia camera (catastalmente stenditoio), disimpegno con terzo bagno finestrato e cameretta. L'immobile è in buone condizioni sia interne che esterne, videocitofono e posto auto scoperto ad uso condominiale a rotazione. Prezzo Eu. 229.000 - Per ulteriori informazioni potete contattare la Bea Immobiliare allo 06/90018074 - 06/90018696 - 327/0411867 oppure richieste.beaimmobiliare@gmail.com
Video
Richiedi maggiori informazioni
Mappa
Zoom della mappa
Apri con:
Apple Maps
Google Maps
Waze
Contattaci
Bea Immobiliare di Zaccaria Beatrice
Via Nomentana, 26 00013 FONTE NUOVA (RM)
Via Nomentana, 26 00013 FONTE NUOVA (RM)
C.F.: ZCCBRC69D41H501S
P.IVA: 15714841002
0690018074
3270411867





