TRL – V. FONTE LAGRIMOSA – NUOVA COSTRUZIONE
€ 249.000
Fonte Nuova, Roma
Dettagli
Contratto Vendita
Rif 374
Prezzo € 249.000
Provincia Roma
Comune Fonte Nuova
Indirizzo Via Fonte Lagrimosa">
Vani 3
Camere 2
Bagni 2
Classe energetica
A4 (DL 90/2013)
EPgl,nren 35 kwh/m2 anno
Piano 2 / 3
Riscaldamento autonomo
Condizioni nuova costruzione
Anno di costruzione 2025
Ascensore si
Cucina angolo cottura
Consistenze
| Descrizione | Superficie | Sup. comm. |
|---|---|---|
| Principali | ||
| Immobile - 2° piano | 93 Mq | 93 Mqc |
| Totale | 93 Mqc | |
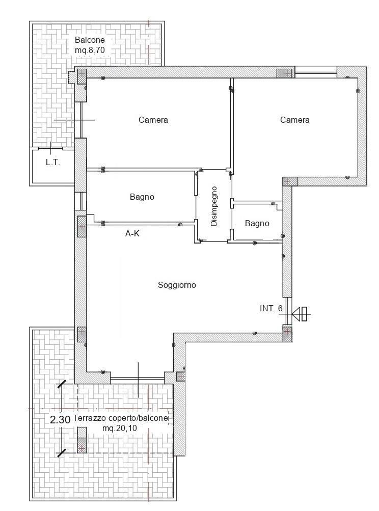
FONTE NUOVA – Tor Lupara – Proponiamo in vendita trilocale con terrazzo e balcone angolare in un moderno complesso residenziale di Nuova Costruzione a Tor Lupara, dotato di ascensore che collega direttamente al piano seminterrato dove sono disponibili Box, Cantine e Posti auto scoperti. L'appartamento si compone da salone con angolo cottura, due camere da letto matrimoniali, doppi servizi, balcone angolare e terrazzo. Completa la proprietà una cantina.
Realizzato con materiali di pregio e tecnologie all'avanguardia, l'immobile garantisce massima efficienza energetica (Classe A4) e risparmio sulle bollette grazie all'assenza di gas, riscaldamento a pavimento, pompe di calore, pannelli solari e predisposizione per aria condizionata. Completa la proprietà un parco verde comune interno, perfetto per relax e tempo libero. Consegna prevista per Dicembre 2025. Prenota ora il tuo appuntamento, contatta la Bea Immobiliare allo 06/90018074 – 06/90018696 – 327/0411867 oppure richieste.beaimmobiliare@gmail.com
Realizzato con materiali di pregio e tecnologie all'avanguardia, l'immobile garantisce massima efficienza energetica (Classe A4) e risparmio sulle bollette grazie all'assenza di gas, riscaldamento a pavimento, pompe di calore, pannelli solari e predisposizione per aria condizionata. Completa la proprietà un parco verde comune interno, perfetto per relax e tempo libero. Consegna prevista per Dicembre 2025. Prenota ora il tuo appuntamento, contatta la Bea Immobiliare allo 06/90018074 – 06/90018696 – 327/0411867 oppure richieste.beaimmobiliare@gmail.com
Richiedi maggiori informazioni
Mappa
Zoom della mappa
Apri con:
Apple Maps
Google Maps
Waze
Contattaci
Bea Immobiliare di Zaccaria Beatrice
Via Nomentana, 26 00013 FONTE NUOVA (RM)
Via Nomentana, 26 00013 FONTE NUOVA (RM)
C.F.: ZCCBRC69D41H501S
P.IVA: 15714841002
0690018074
3270411867





