TRL - Via dei Pini - 218
€ 218.000
Fonte Nuova, Roma
Dettagli
Contratto Vendita
Rif 377
Prezzo € 218.000
Provincia Roma
Comune Fonte Nuova
Indirizzo Via dei Pini">
Vani 3
Camere 2
Bagni 1
Classe energetica
A1 (DL 90/2013)
EPgl,nren 3,51 kwh/m2 anno
Riscaldamento autonomo
Condizioni nuova costruzione
Anno di costruzione 2025
Ascensore si
Cucina cucinotto
Consistenze
| Descrizione | Superficie | Sup. comm. |
|---|---|---|
| Principali | ||
| Immobile - piano terra | 80 Mq | 80 Mqc |
| Totale | 80 Mqc | |
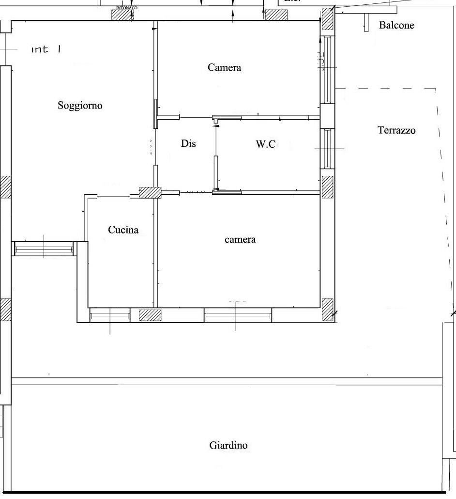
Fonte Nuova - Località Tor Lupara - NUOVA COSTRUZIONE IN PRONTA CONSEGNA - Proponiamo in vendita appartamento sito al piano terra composto da: soggiorno, cucinotto, disimpegno, camera matrimoniale, cameretta, bagno, terrazzo di 50 mq. ca., loggia e giardino di circa 50 mq. Completa la proprietà un posto auto scoperto. Possibilità di acquistare a parte cantine e box. Rifiniture interne: Pavimenti in Gres 60x60; Porte interne in Legno Laccate con cerniere a scomparsa, Infissi in Legno con triplo vetro e Grate di Sicurezza esterne, Pannelli fotovoltaici e Pannelli solari. Prezzo Eu. 218.000 - Per ulteriori informazioni potete contattare la Bea Immobiliare allo 06/90018074 - 06/90018696 - 327/0411867 oppure richieste.beaimmobiliare@gmail.com
Richiedi maggiori informazioni
Mappa
Zoom della mappa
Apri con:
Apple Maps
Google Maps
Waze
Contattaci
Bea Immobiliare di Zaccaria Beatrice
Via Nomentana, 26 00013 FONTE NUOVA (RM)
Via Nomentana, 26 00013 FONTE NUOVA (RM)
C.F.: ZCCBRC69D41H501S
P.IVA: 15714841002
0690018074
3270411867





